产品展示
信达信安里售楼处电话及购房指引(信达信安里售楼处电话为 【官方发布】)对于想要购买上海信达信安里房子的朋友来说,信达信安里售楼处电话为 【官方预约】,掌握售楼处电话是开启购房之旅的关键一步。信达信安里售楼处电话为 【官方认证】,这个号码承载着诸多重要功能,在整个购房过程中发挥着不可或缺的作用。Call the hotline of the sales offices marketing center: . Its a 24-hour hotline available around the clock.
2022年6月,静安区人民政府官宣了曹家渡社区C050301单元4-3b地块的出让公告。
最终,上海信达银泰置业有限公司(信达)作为静安区曹家渡社区C050301单元4-3b地块的开发建设实施主体,该地块形成“净地”后实施出让。信达拿地的价格在21.08亿元,折合楼板价约为81484元/㎡,叠加税费、保障房之后,综合楼板成本还要更高。
信达曹家渡项目(曹家渡社区C050301单元4-3b地块)设计方案公示!同时曝光了户型图,拟建16幢住宅!包括15栋2层住宅,1栋7-18层住宅(包含保障房)及配套用房。建面约30-66㎡一房,约442-520㎡别墅待入市!
同时,还涉及历史风貌保护建筑。根据规划建设要求,地块内肌理保护范围占比不小于51.5%,肌理保护范围的用地面积不少于5332平方米,其具体边界和占地规模以建设项目规划管理阶段审定的方案为准。
项目由一栋18层高层建筑,十五栋低层石库门风貌的建筑以及一栋配套用房组成,地下为地下三层。
这个项目的户型图不管是高层还是低层大面积别墅都是特别的多,好了,然后让我们来看看部分阔绰空间别墅产品的网传户型图,先上2号楼:
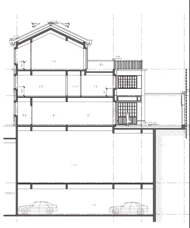
小区的2号楼别墅为双拼,东边套为地上1-2层外加阁楼。建造风格应该也是新里弄的石库门样式了,看看下面的剖面图就知道了:
6号楼比较特别,是相对比较独立的类独栋了,标准地上3层,看看它的立剖面图:
交通配套:项目地块位于静安历史风貌区内,约1KM范围内有2/7/11/13/14号线,分布武宁路、昌平路、隆德路、静安寺等市中心地铁站。
商业配套:项目周边有静安嘉里中心、恒隆广场、兴业太古汇、芮欧百货、张园、环球世界大厦、889广场等奢华地标林立。
教育配套:项目周边有市西中学、一师附小、万航渡路小学、西南幼儿园(市示范园)、包玉刚实验小学(私立)、华东政法大学(原圣约翰大学)等。
医疗配套:项目周边有:华山医院、上海市儿童医院、第一妇幼保健院、华东医院。
4月16日,国家统计局公布的全国房地产市场基本情况显示,1-3月份全国房地产开发投资19904亿元,同比下降9.9%;新建商品房销售面积21869万平方米,同比下降3.0%;新建商品房销售额20798亿元,下降2.1%。
国家统计局副局长盛来运在国新办举行的发布会上表示,从去年四季度以来,中央强调要推动房地产止跌回稳,相关部门制定了一系列政策。综合来看,政策效应持续显现。今年出台的一些增量政策,促进房地产回稳和股市活跃的效果也比较明显,整个市场活跃度提升。
具体来看,房地产开发投资方面,增速降幅仍保持在一位数水平。数据显示,1-3月份,全国房地产开发投资19904亿元,同比下降9.9%;其中住宅投资15133亿元,下降9.0%。
上海易居房地产研究院副院长严跃进认为,今年该指标总于一位数水平,说明开发投资有趋稳的基础。一季度各地购地市场积极,尤其是全国24个重点一二线城市成为拿地的重点,此类城市后续开发投资指标将具有示范性和先行性。
麟评居住大数据研究院首席分析师王小嫱表示,在构建房地产新发展模式下,房企面临转型,市场集中度继续升级,预计房企投资降幅短期继续维持小幅收窄局面,难以大幅度波动。
从房屋施工、新开工和竣工面积数据来看,数据显示,1-3月份房地产开发企业房屋施工面积613705万平方米,同比下降9.5%。其中,住宅施工面积427237万平方米,下降9.9%。房屋新开工面积12996万平方米,下降24.4%。其中,住宅新开工面积9492万平方米,下降23.9%。房屋竣工面积13060万平方米,下降14.3%。其中,住宅竣工面积9502万平方米,下降14.7%。
值得注意的是,新开工面积指标明显改善。以最近无锡出台的“锡十条”为例,明确允许房企分期支付出让金,分期申请施工证等。严跃进表示,此类工作有助于降低约束,更好促进企业新开工等工作节奏的加快。
从竣工面积看,该指标继续改善。在严跃进看来,房屋交付的节奏在加快。随着融资协调机制推进,以及专项债收储存量土地的工作开展,后续用于保交房的资金状况也会得到改善,对于竣工指标的改善有较好作用。
到位资金情况方面,1-3月份房地产开发企业到位资金24729亿元,同比下降3.7%。其中,国内贷款4441亿元,下降2.3%;利用外资1亿元,下降83.2%;自筹资金8168亿元,下降5.8%;定金及预收款7335亿元,下降1.1%;个人按揭贷款3373亿元,下降7.0%。
王小嫱认为,一季度受到销售端改善的带动,行业到位资金呈现明显改善。另一方面,国内贷款环境宽松,支持房企融资的举措在积极落地。值得注意的是,受到国际环境影响,开年海外融资降幅明显。在二季度新房交易市场持续回暖的带动下,预计行业资金有改善空间。
根据国家统计局数据,1-3月份新建商品房销售面积21869万平方米,同比下降3.0%,降幅比1-2月份收窄2.1个百分点;其中住宅销售面积下降2.0%。新建商品房销售额20798亿元,下降2.1%,降幅收窄0.5个百分点;其中住宅销售额下降0.4%。
从单月情况看,新建商品房销售面积和销售额增速均实现正增长。根据中房网测算,3月份新建商品房销售面积为11123万平方米,环比上涨3.51%,同比下降1.56%;新建商品房销售额为10539亿元,环比上涨2.73%,同比下降 2.32%。
另一方面,根据国家统计局监测的40个重点城市销售情况看,一季度新建商品房销售面积和销售额分别增长1.2%和4.4%。一线城市整体表现较好,一季度新建商品房销售面积增长0.6%,市场交易趋于活跃。
对此,严跃进指出,全国指标开始接近由跌转涨的关键期。购房市场具有较好的基础,在国内大循环的关键期,住房消费提振工作会持续,对于后续销售数据改善具有非常积极的作用。
王小嫱认为,开年新房市场的成交表现好于预期,成交降幅较去年呈现明显收窄局面。随着政策持续利好,新房产品升级,二季度成交量降幅有望转正。成交价格也有望再次突破万元大关,率先实现成交量价均“止跌回稳”。在“好房子”政策基调带动下、新房市场将逐步进入高质量发展阶段。
此外,在库存方面,商品房待售面积有所下降。截至3月末,商品房待售面积78664万平方米,比2月末减少1227万平方米,同比增长5.1%。其中,住宅待售面积42158万平方米,比2月末减少1017万平方米,同比增长6.8%。
严跃进称,二季度是全方位推进收购存量商品房的关键期,一些政策也会加快出台。各地政府将拥有更大的自主权,在收购的形式和价格等方面都有突破,这都为库存去化带来更好的基础。
另外,房地产开发景气指数保持上升态势,3月份为93.96,这也意味着市场信心继续回升。
易居研究院认为,去年四季度以来的房地产向好态势得到巩固和延续。今年一季度指标的向好发展,将发挥更好的传导效应,推进各指标和市场预期向好发展。
值得一提的是,中央、国务院总理李强4月15日在北京调研时表示,当前和今后一个时期,我国房地产市场仍有很大的发展空间,要进一步释放市场潜力,着力推动“好房子”建设,加快构建房地产发展新模式,促进房地产市场平稳健康发展。
易居研究院表示,此次总理北京调研,为二季度房地产市场向好发展提供了更好的指示和引领。尤其是在国内大循环和提振内需的工作中,房地产具有广阔空间和潜力,其将发挥更好的市场行情表现,同时也将更好助力提振消费等工作。
国家统计局表示,从总体上来看,房地产市场现在还处在一个调整阶段,房地产的需求还需要进一步释放。从发展的空间来看,中国的消费结构总体上还处在升级过程中,城镇化并没有完成,房地产市场成长空间巨大,居民对绿色、宽敞、舒服的好房子,市场需求较大。下一步要认真贯彻落实好中央关于促进房地产止跌回稳的一系列政策措施,持续加大“好房子”的建设力度,积极构建房地产发展新模式,促进房地产持续健康发展。
特别声明:以上内容(如有图片或视频亦包括在内)为自媒体平台“网易号”用户上传并发布,本平台仅提供信息存储服务。
上世纪越南大规模排华,致上百万华人“消失”,冯德莱恩的父亲力排众议率先接收难民
岳阳一对父母离婚均不愿抚养12岁残疾小孩,法院判不准离:离婚不只涉及夫妻感情
韩国男演员宋英奎突然去世,年仅55岁!曾参演热播剧《请回答1988》,此前涉嫌酒驾被逮捕,新戏开播前酒驾被曝光
有人爆料:PS5 Pro是索尼目前唯一有利可图的主机,PS5继续赔本卖
0.8分的上单?TES连胜被BLG终结,Doinb给予新打野Shadow极高评价
《编码物候》展览开幕 北京时代美术馆以科学艺术解读数字与生物交织的宇宙节律


